Portfolio

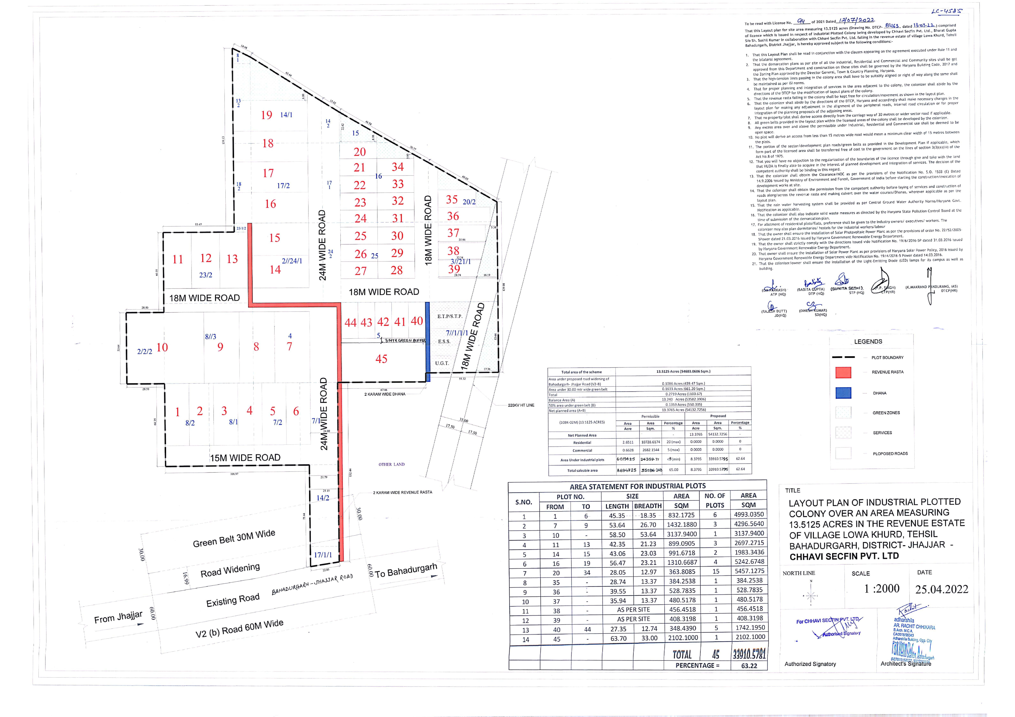
SITE LAYOUT

LICENCE

ZONING PLAN

HRERA

CONSENT TO ESTABLISHED

Compare listings

Compare